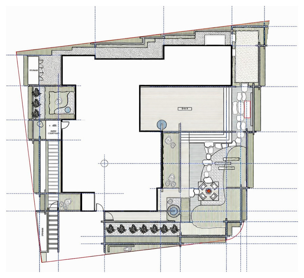
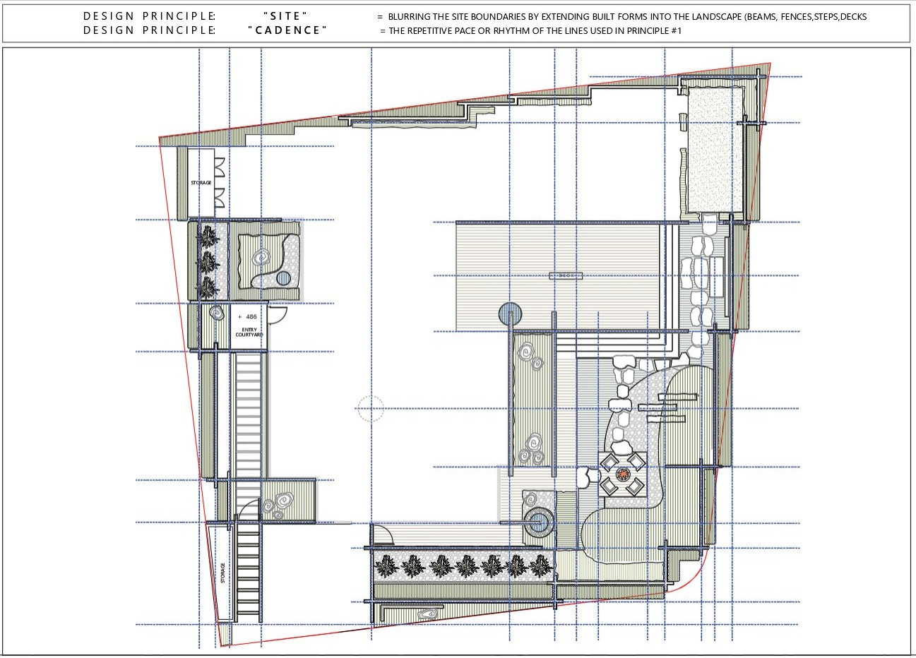
I m a g i n e ……. After 65 years, Since Frank Perry built this house as an artists retreat, it has remained untouched without upgrades or alterations. A young couple are the new custodians, and they are embarking on an incredible journey of renewal. Guiding us on this journey, are Arthur Erickson's’ four defining design principles: SITE, LIGHT, CADENCE and SPACE: By honoring, embracing and applying these principles, we lay the foundation for the Next 65 Years:
Architect: Douglas R Johnson : Photos Courtesy of : West Coast Modern Real Estate: Photos Courtesy of : The Arthur Erickson Foundation



















































