Skip to main content
Home
Projects
About
Contact Us
Home
Projects
About
Contact Us
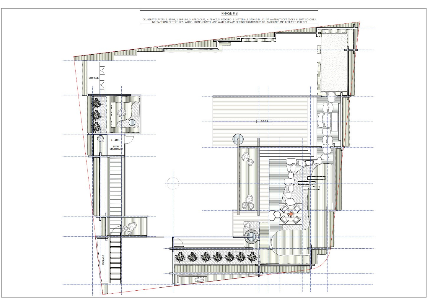
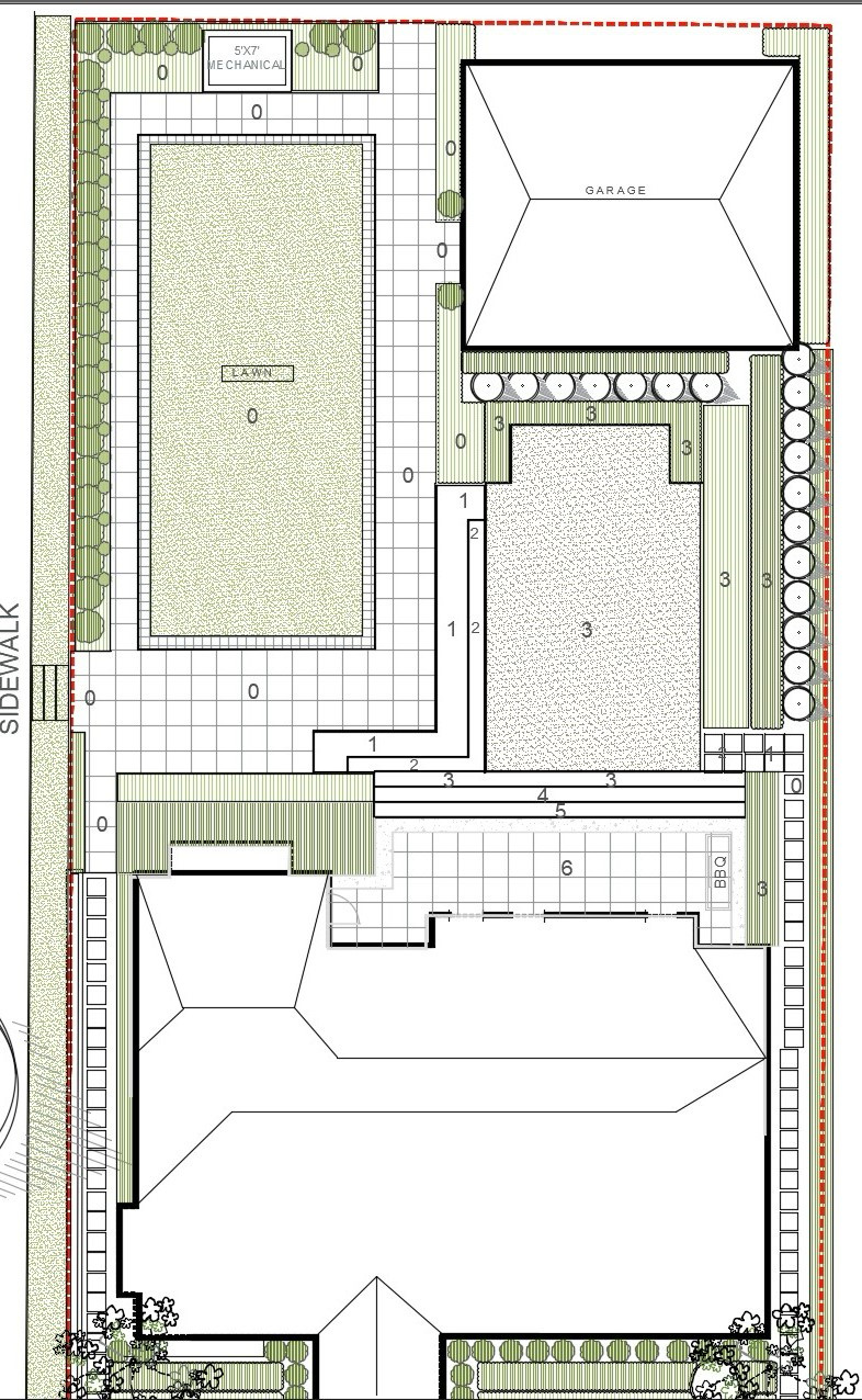
Projects In Development and Construction